toggle menu

実例91札幌市 D事務所 フル増築減築

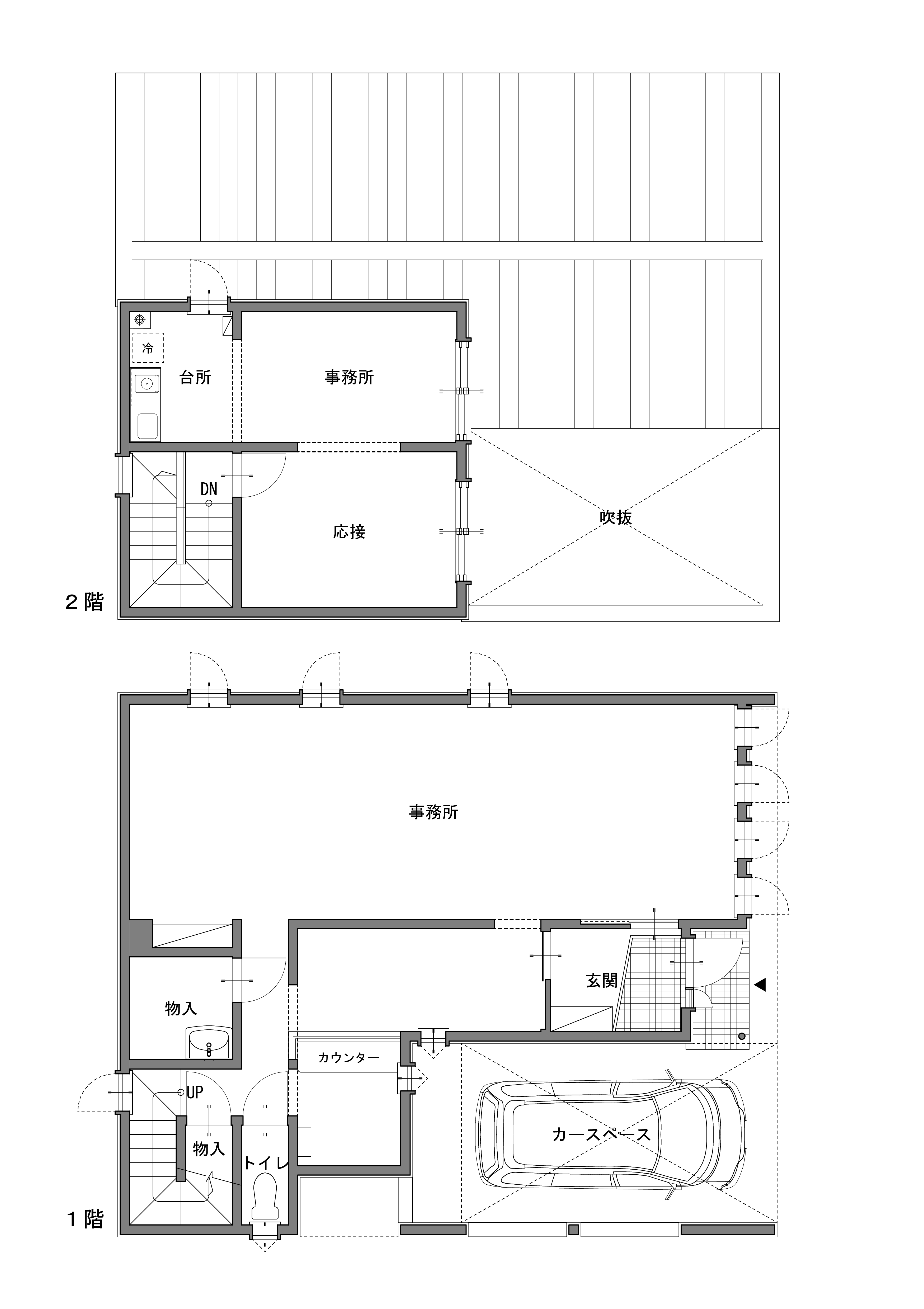
【事務所】診療所を事務所へ改修

診療所だった建物を事務所として使用していましたが、「もっと快適にしたい!」と改修をご希望されました。カーポートは雪の処理が大変なため屋根とシャッターを付けて車庫に変更し、防犯上を考慮して玄関の入口を正面から車庫側へ移動しました。また車庫の上はバルコニーとしました。内部は間仕切壁を一部取り除いて広い空間へ。1階のトイレは男女別々に設置。2階にはトイレの他にシャワールームも設置しました。

診療所から事務所へ変更

区切られていた空間を間仕切壁を一部取り除いて広い空間へ変更。構造上取り除けない柱は残しました。

左端の窓は撤去し耐震補強しました。

カーポートから車庫へ変更、玄関入口の位置も変更

除雪が大変だったカーポートを車庫へ変更。防犯上、玄関入口の位置も正面から車庫側へ移動しました。

1階は男女別々のトイレへ変更

1階にはもともと1つしかトイレがありませんでしたが、パウダールームとしても使えるように女性用トイレを新たに設けました。

2階キッチンを対面式に変更

壁付けのキッチンを対面式に変更。向かいにカウンターを付けて簡単な食事をできるようにしました。

バルコニー、シャワールーム、トイレを新設

2階にバルコニーを新設。シャワールームとトイレも新たに設置しました。

 

バルコニー

カーポートを車庫にするために屋根を作り、そこをバルコニーとしました。道路側からの目隠しとして手摺壁を高くしています。

シャワールーム・トイレ

2階にトイレと併設してシャワールームを作りました。

 


車庫と玄関部分を増築しています。車庫上はバルコニーにしました。

1階:カースペースを車庫へ変更。玄関を広げて入口を正面から車庫側へ移動。女性用トイレを新たに設けパウダールームとしても使えるようにしました。間仕切り壁を一部取り除いて無駄な空間を無くしました。耐震上正面の窓を1つ無くして構造補強しています。
2階:カーポート上の吹抜はバルコニーにして車庫の屋根としました。キッチンは移動して対面式へ。もとの台所の位置にトイレとシャワールームを設置しました。応接と事務所の間の壁を取り払い一体感のある空間へとしています。

 

 

 

 

増築減築リフォームTOPへ

その他の戸建リフォーム実例