toggle menu

実例92札幌市 M様邸 フル増築減築耐震

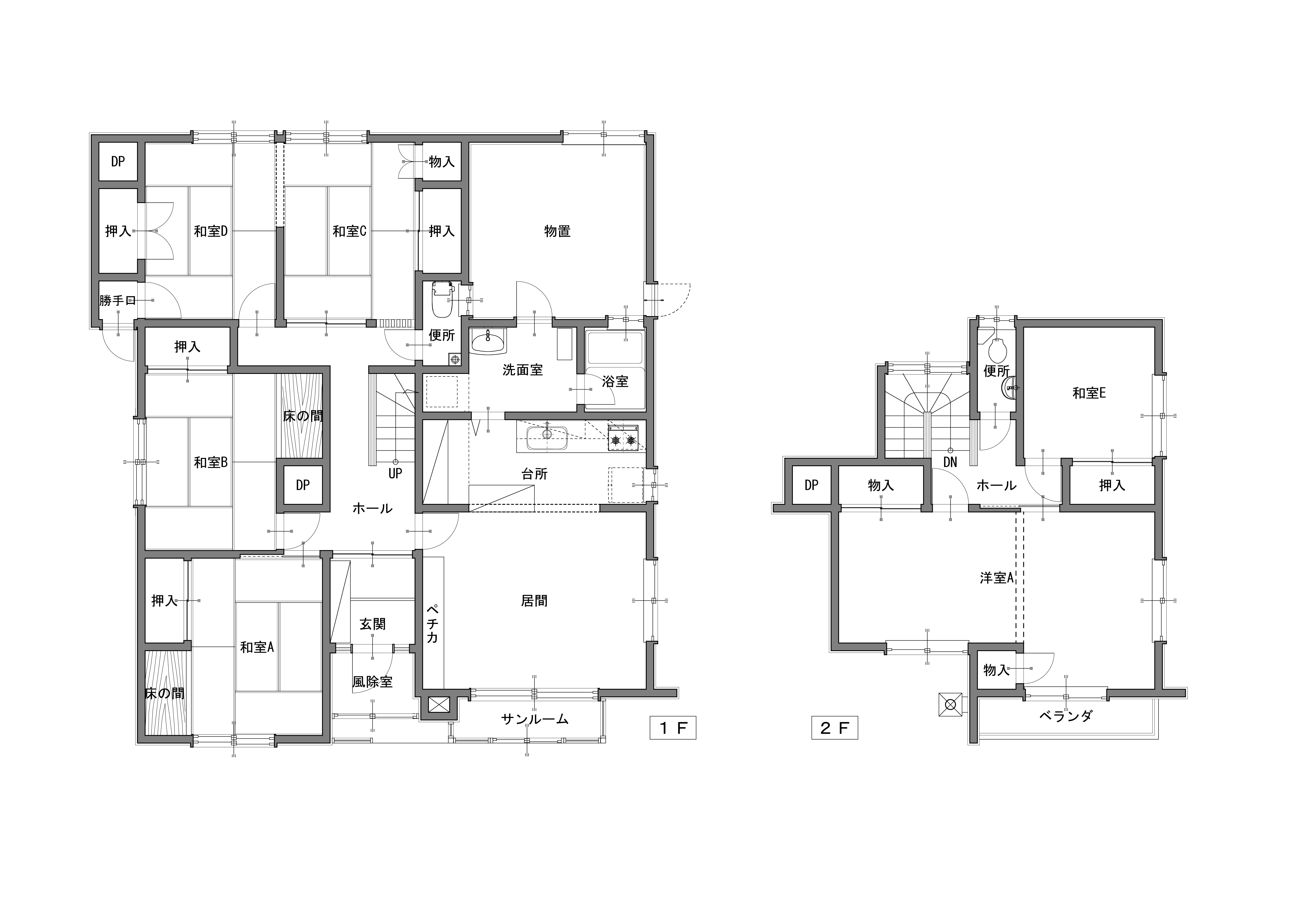
築50年以上の家を大規模フルリフォーム

築50年以上ということで雨漏り跡や建物のあちこちに傷みや劣化が見られました。今回のフルリフォームで全て新しくし、またこれを機に建築基準法に抵触していた部分を減築して解消し、簡易的に作られていた物置部分も撤去しました。全面バリアフリーとし階段も上り下りしやすい形状に変更。不要となったサンルームやベランダ・煙突・意匠上の袖壁を撤去し外観もスタイリッシュに変わりました。間取変更をしたので構造補強や耐震補強も実施しました。

 

フルリフォームで外観もすっきり

煙突・ベランダ・サンルーム・意匠壁を撤去し、屋根型もすっきりさせました。窓も全部断熱性の高い樹脂サッシへ交換しました。

 

断熱性能の高い玄関ドアに交換。風除室サッシも新しくしました。

 

明るいリビングへ

ペチカとサンルームを撤去したことで明るく広々としたリビングに生まれ変わりました。

 

 

対面キッチンに

狭くて暗かった台所を対面キッチンへ変更。下がり壁を撤去し吊戸も無しにして開放的で明るくしました。お客様の要望でキッチン前には食事ができるようにカウンターを取り付けました。

 

 

部屋を広く快適に

7つの部屋のうち6つを隣り合う部屋どうしを繋げて広い3つの部屋へ変えました。

 

1階の和室2部屋を1つの洋室へ

高齢のお母様の寝室ということで、部屋の一部を畳敷きに。ミニキッチンを設置し、トイレも隣接させました。

1階奥の和室2部屋も1つの洋室へ

壁と下がり壁を撤去し1つの部屋へ。奥の勝手口と押入部分は減築しています。

 

2階洋室2室を1室へ

下り壁を撤去して左奥は1.5帖広くしました。ミニキッチンを設置しました。

昇り降りしやすい階段へ

階段を架け替えるにあたり補助金の対象となる形状をご提案。階段の回り部分を工夫して札幌市住宅エコリフォーム補助金の対象となるようにしました。

 

その他水回りリフォーム

浴室

0.75坪から1坪タイプのユニットバスに交換。浴室の入口の段差がなくなりました。

 

洗面台

物置部分を減築したのでドアは撤去して、そこに洗面台を設置しました。

 

トイレ

1階トイレ:母親の部屋の隣になるように押入があった場所を利用してトイレを設置。部屋から直接行けるようにホール側ドアの他に部屋側にも引戸を設けました。2階トイレも交換しました。

 

耐震補強・構造補強

図面の無い建物だったため、スケルトン状態の時に基礎・柱・梁・筋かい等の位置を確認。それをもとに構造計画を考えました。屋根に雪が積もっても大丈夫なように梁や柱を補強し、外壁には全面構造用パネルを張り地震に対して強くしました。

 


外壁後退距離が不足している部分と裏の物置部分を減築。サンルーム、ベランダを撤去。2階部分を少し増築しました。

1階:台所が狭かったので対面キッチンに変更。台所~洗面室~ホールと回遊動線を確保。和室4部屋は2つの広い洋室へ。高齢の母親の寝室の隣にトイレを配置しました。
2階:増築して広く使いやすい形の部屋へ。和室はウォークインクローゼットに変更しました。

 

 

 

 

耐震リフォームTOPへ

その他の戸建リフォーム実例